For RentWilton Terrace SW1X 8RR
Basics
- Category: For Rent
- Bedrooms: 3
- Bathrooms: 1
- Shower: 2
- Reception Rooms: 2
- Total rooms: 6
- Floors: 2
- Floor level: 0
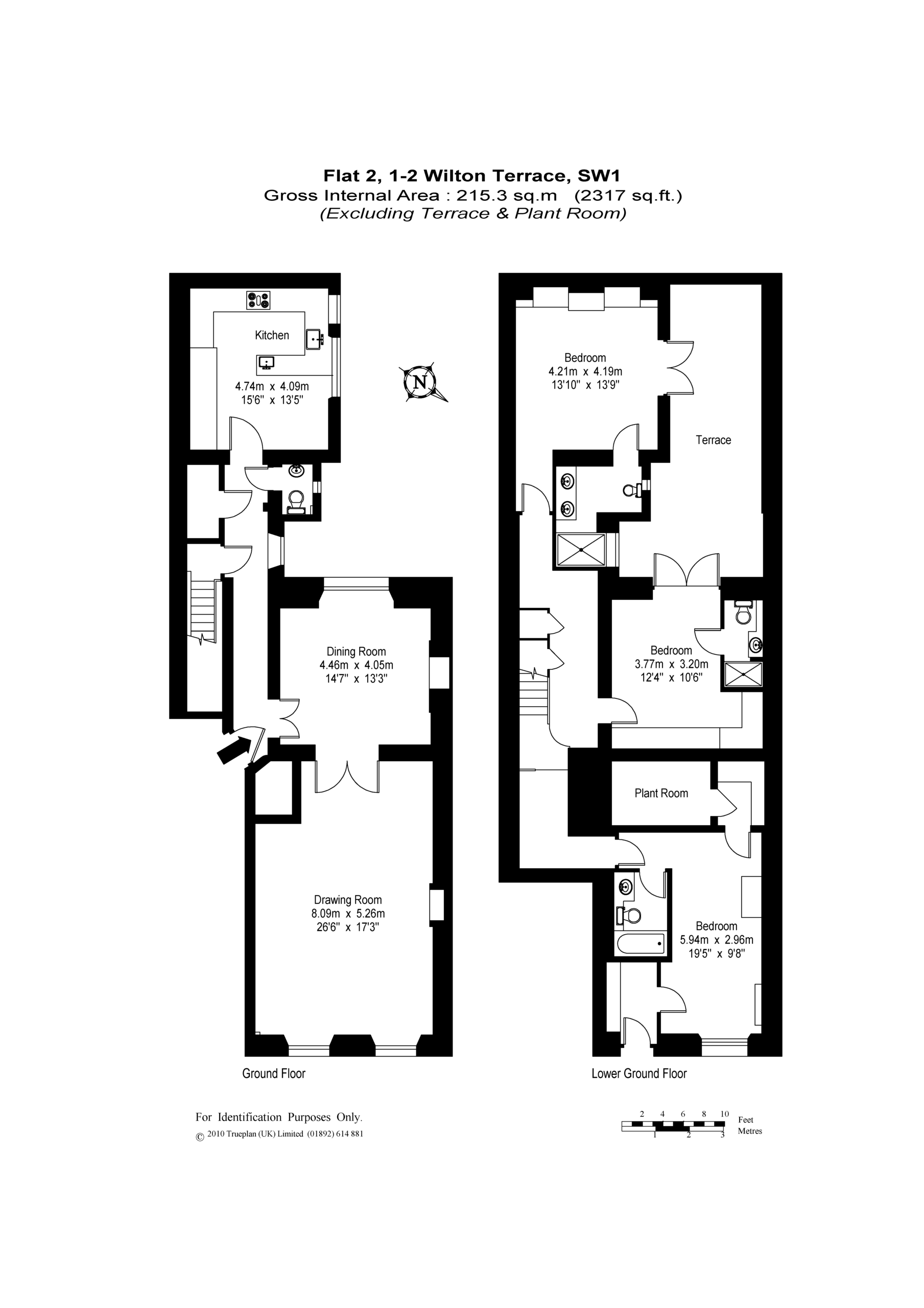
- Area, sq ft: 2317 sq ft
- EPC: d
Description
-
Description: Occupying the Ground and Garden floors of a double fronted White Stucco period conversion nestling at the top of Motcomb Street in the heart of Belgravia this wonderful 2300 sq ft THREE Bedroom property is stylishly Furnished and ready to be your London home.Entering the 27ft x17ft Drawing Room you are struck by the splendid volume with its 12ft ceiling height, restored parquet floor, original shutters and proportions to bring a smile to old Italian mathematicians. A formal dining room adjoins and could be added to the living space as there is a fully fitted eat-in kitchen with top quality machinery down the hall. A guest cloakroom and coat cupboard completes the ground level. Downstairs provides THREE good sized bedrooms: the Master with en-suite marble wet room shower opens onto a private patio, the second bedroom with new shower room also opens onto the patio and has a workstation area and converts easily into a study, and the third enjoys a full bathroom Excellent storage throughout. The Building benefits from a resident caretaker.Wilton Terrace lies just off Belgrave Square (you can join the central gardens and tennis by separate negotiation) at the top of fashionable Motcomb Street with its array of boutiques, restaurants and cafes and a very useful Waitrose. Wander over to Sloane Street in minutes and you realise that you are living at the heart of the arguably the best "village" in London and walk down the newly refurbished Street to The Square and enjoy the Pavillion Road "Market" and Duke of York Square.Show all description
Powered by Estatik